01
H住宅
智利公司Felipe Assadi Arquitectos的新作品,位于智利中部的一个沿海城镇Zapallar,一座能俯瞰太平洋的倾斜场地,建了一座长长的混凝土房屋。

使用钢筋混凝土建造房屋,其中两根大梁横跨屋顶和一楼,两根主纵梁 :长41米,高1.4米,沿南北方向延伸,并在两端形成7米长的悬挑结构,因此得名H型宅▼


下沉式的入口▼

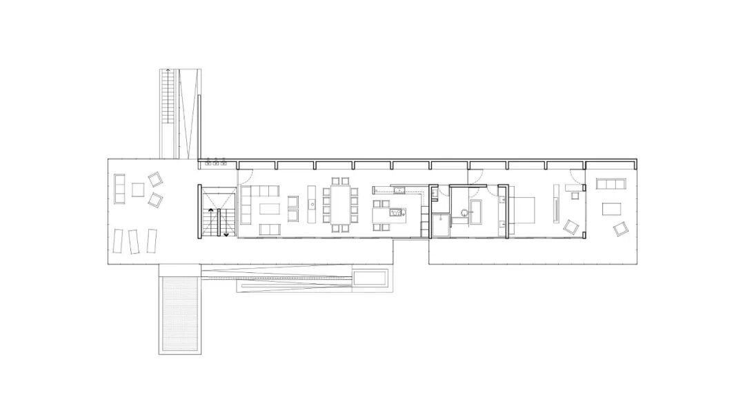
整体的布局设计,公共区域,餐厅和厨房,一个大的开放空间,没有墙壁或柱子▼

房子周围的坡道可以到达前面的院子,院子从东到西穿过主体结构下方,
整个建筑看起来更加有一种漂浮感。

平立面图▼



02
海洋之家
Ocean House

在澳大利亚大洋路上的一个民宿,位于沿途小镇洛恩(Lorne)的Ocean House,距离幽静的海滩仅100米。

室内设计极为简单,除了灰白色的涂料和木材几乎没有其他材料。






浪漫奢华的的全景卧室,视野极佳的环绕式露台,带露天浴池的屋顶天台。


从外部的楼梯一直向上可以到达屋顶的露台▼

平面图▼


03
GHAT HOUSE
这座海滨住宅位于智利,由MaxNúñezArquitectos事务所设计完成,其屋顶上覆盖着连续的台阶,建筑体量与场地的陡坡平行,它坐落在一个巨大的陡坡上



十五根不同尺寸的立柱支撑着屋顶。 倾斜的室内空间有不同寻常的布局方式。
<img data-copyright="0" data-ratio="0.9635974304068522" data-s="300,640" data-src="https://mmbiz.qpic.cn/mmbiz_jpg/jRyEl1a7FXKXd6pMnON8iaUkpiceIhSwicdTjLKWbTjxiccNhJgtLn3BWJJ2QnhxrNKlfVicKSmjjmVXAMuo0oSssQQ/640?wx_fmt=jpeg" data-type="jpeg" data-w="9
