
PROJECT INFORMATION
-
Project address
项目地址丨东原嘉阅湾
Project area
项目面积丨400㎡
Design style
设计风格丨意式风格
Design and construction
设计施工丨艺百年国际设计

↑负一楼平面布置图

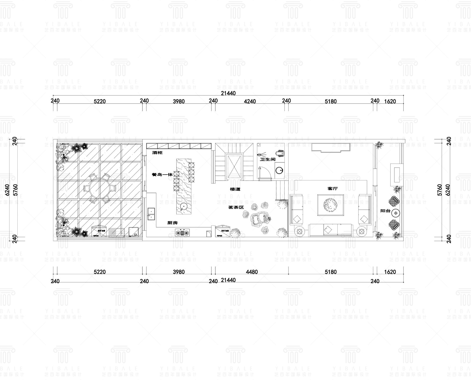
↑一楼平面布置图

↑二楼平面布置图

↑三楼平面布置图
此项目是一个联排中户,采光只能前后采光,设计要求宽敞,明亮,温馨的居家环境,大客厅电视墙和壁炉墙设计厚重岩板,整体家庭稳重气质,岩板悬浮楼梯下配植物造景,与客厅融为一体,简单整洁,轻奢满满,高级有品。














— END —

