
PROJECT INFORMATION
-
Project address
项目地址丨云湖上郡
Project area
项目面积丨550㎡
Design style
设计风格丨现代中式风格
Design and construction
设计施工丨艺百年国际设计
根据山城特有的坡地落差式地貌特点建造的四层别墅,入户主入口和私家院落垂直落差达到三层楼高度。入户独立内、外门厅设计分区明确,设计中特意将主客厅下沉到底楼,并两层打通做出挑高客厅,内门厅凭栏可俯瞰客厅全景,客厅旁配以超大品茗台,独立阳光餐厅,新中式的风格搭配,尽显尊贵气势。从客厅一步可直出私家庭院,享受阳光自然景观,连廊移步超大转角露台,远眺湖光山色。

↑一楼平面布置图

↑二楼平面布置图

↑三楼平面布置图

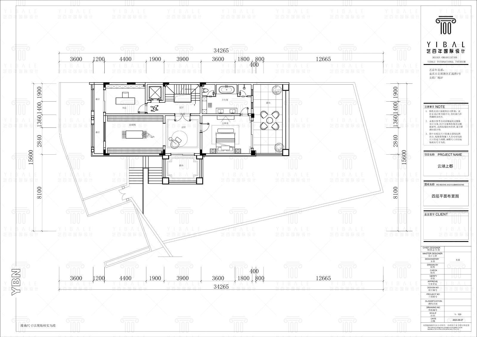
↑四楼平面布置图







— END —

