
PROJECT INFORMATION
-
Project address
项目地址丨国博城泊珏墅
Project area
项目面积丨450㎡
Design style
设计风格丨现代美式风格
Design and construction
设计施工丨艺百年国际设计
业主二人因有长期海外留学生活的经历而喜欢美式随性舒适的风格,家里常驻人口三人:业主夫妻俩和一个可爱的女儿。
设计师在与女主人的交流中了解到其喜欢弧形,因此在设计中墙面顶面楼梯等位置运用了大量弧形元素,使居住空间各连接处变得安全的同时也显得更加柔和,迎合了美式风格中追求舒适温馨的理念。
在色彩运用上区别于传统美式风格融入了大量现代元素如玻璃砖墙以及玻璃栏杆,墙面化繁为简大面积运用白色,仅在重要挑空区域墙壁施加颜色,使整个空间主次分明,搭配座椅清新的绿色,让整个空间充满时尚大气感的同时又体现出理性的色彩,暗合了业主理性的性格。

↑负二楼平面布置图

↑负一楼平面布置图

↑一楼平面布置图

↑二楼平面布置图

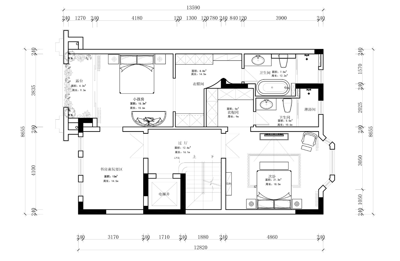
↑三楼平面布置图



















— END —

